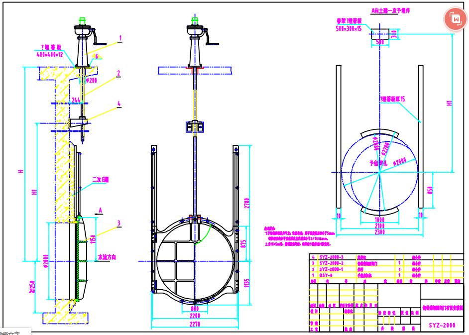
SYZ2000鑄鐵圓閘門安裝圖紙下載
SYZ2000鑄鐵圓閘門安裝圖紙下載

服務熱線13852217951
SYZ2000鑄鐵方閘門安裝圖紙下載 ,我們提供DWG圖紙下載查閱,CAD軟件可查閱。
點擊下載
SYZ-2000鑄鐵鑲銅圓閘門.rar

SYZ2000鑄鐵圓閘門選用須知:
1、 選用閘門時應注明H值(閘門中心至啟閉機底部平臺高度)。
2、 啟閉機應根據表中啟閉力及自動化程度確定,具體可參考啟閉機樣本。
3、 平臺設計負荷應考慮正反雙向承受(關閉力參考開啟力)。
4、 軸導架是根據井深不同而設定的,設計時應與聯軸器不干涉。
5、 工作時整條螺桿,聯軸器、閘板都做上下移動為明桿閘門,工作是螺桿不移動,閘板上下移動稱為暗桿閘門。
6、 方向承壓閘門應選用時應注明,正向承壓閘門當用于隨受么向水壓時,水頭應<2.5m。
7、 暗桿閘門宜裝于風景區或道路中間的窖井內,此種閘門自帶開啟裝置,不需專用啟閉機。
8、 訂貨時應注明H,并注明單獨閘門(與配套啟閉機)的具體名稱、型號、規格。
9、 本廠可承制其它材料(不銹鋼、碳鋼、鋁合金、塑料)或特殊形工閘門。
10、本廠供貨不含任何預埋件,所以閘門布置參照上頁。
11、本廠所提供樣本如有修訂不另行通知。
本文來自于:m.jahoo2.com