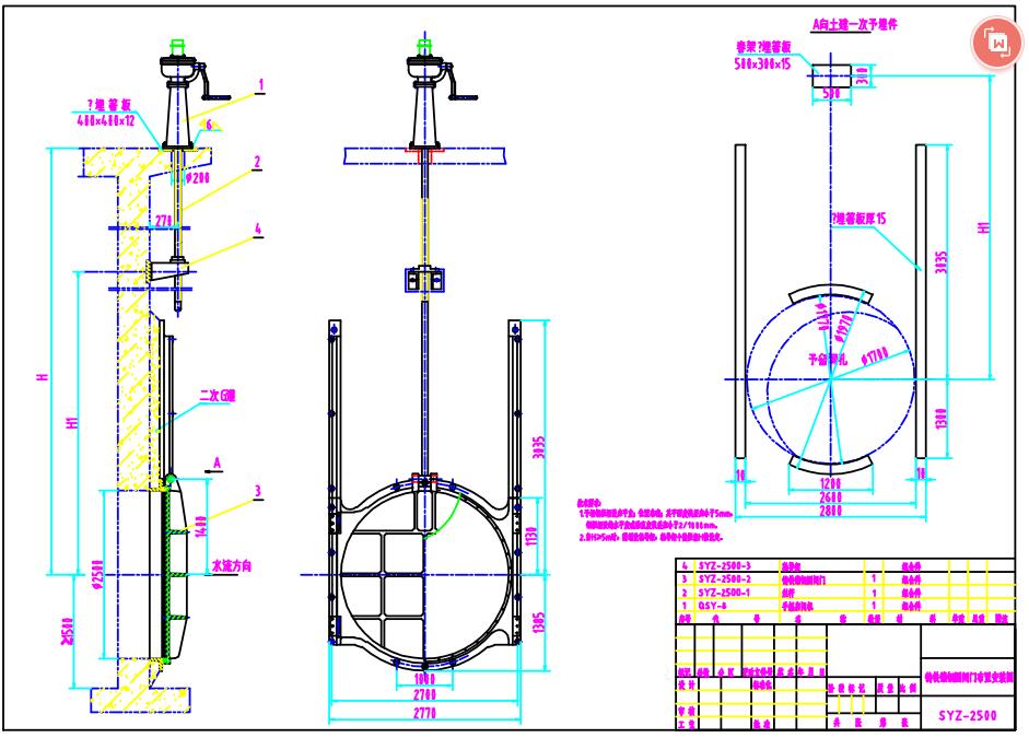
SYZ2500鑄鐵圓閘門安裝圖紙下載
SYZ2500鑄鐵圓閘門安裝圖紙下載

服務熱線13852217951
SYZ2500鑄鐵圓閘門安裝圖紙下載 ,我們提供DWG圖紙下載查閱,CAD軟件可查閱。
點擊下載
SYZ-2500鑄鐵鑲銅圓閘門.rar

SYZ2500鑄鐵圓閘門安裝事宜:
1、按預埋圖中的要求預留閘門及啟閉機安裝位置.
2、用吊鉛錘直線方法預埋預埋件,保證其表面和垂直度為1.5~3‰范圍內。
3、用螺栓將門框、導軌固定在預埋件上。
4、當螺桿細長比(提升桿長度/螺桿外徑)4H/d>200時應設置軸導架,軸導架距閘門吊耳距離應大于閘門最大開啟度。
本文來自于:m.jahoo2.com